House is an important place in our life. Therefore, discover a way to enjoy life with comfort. Every home is valuable because of its benefits. To sum up, any type of house would be best if it satisfies you. But, it depends on what is important for different people. Absolutely, this enchanting one story house plan is a home that will offer you the true relevance of living.
Actually, people say that homes are like valuable family members need to be loved and appreciated. Equally, homes are not simply circumscribed by the walls that hold them together. They are golden spaces filled with memories, love, and happiness. It reminds me that homes are our sanctuaries as well as places of solace and peace.
Indeed, this is what this enchanting one story house plan will offer you. A cool and inviting shelter, this single story design with four bedrooms has the features of contemporary influences. Besides, this home is an epitome of a modern style because of its character and appeal.

Description of Enchanting One Story House Plan
This unit stands in a lot area that measures 21.29 meters wide and 23.63 meters long with a usable building space of 289.0 sq. meters. The house is big with four bedrooms, a master and three secondary bedrooms with average size of 13.35 sq. meters each. Consequently, the size can accommodate 6-8 family members.
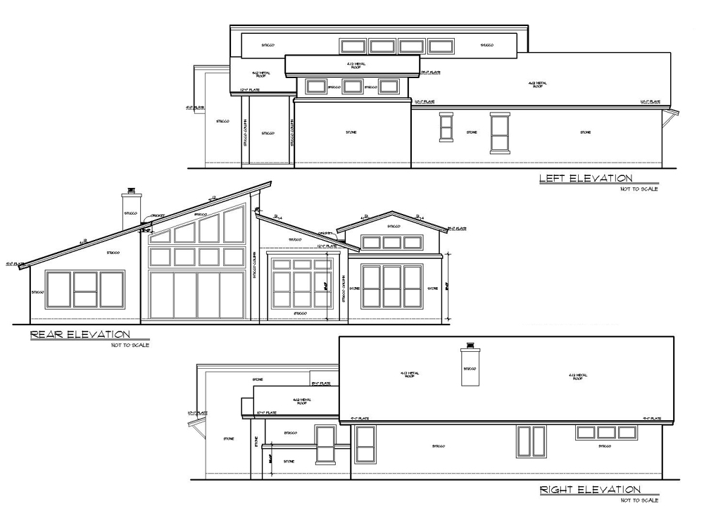
A single level house in feature registers a theme of simplicity in the exterior façade. In fact, the design utilizes only few architectural medium as stones, bricks and glass but the layout offers a magnetic appeal. The rear façade is more intricate in design which is dominantly glass that promotes green building.
Meanwhile, the interior is a friendly layout but portrays high level of privacy. This enchanting one story house plan, offers these elements: front porch, foyer, living room, dining room, island kitchen, peninsula eating bar, walk-in and butler’s pantry, entertainment room, four bedrooms, three baths, powder room, rear patio and two-car garage.

Features of Enchanting One Story House Plan
This one story house plan showcases an exterior façade of simplicity but with strength and authority. The accent of bricks and stones enhanced the overall appearance of the structure. In order to appreciate the captivating appeal of this house, these are its features.
Key Features of this enchanting one story house plan:
- elevated front porch with accents of bricks and stones
- open and free flowing layout between the dining room and island kitchen
- spacious and comfortable living room with complete entertainment set; the space filled with plenty of natural air and light through glass doors
- relaxed dining room filled with air and light through wall sized glass windows
- island kitchen with peninsula snack bar and a wonderful butler’s pantry
- master’s suite furnished with compartmentalized full bath, double vanity sink, garden tub, double shower and spacious walk-in-closet
- three bedrooms furnished with individual walk-in-closets and a common bath, anchored by a garden tub
- exterior wall accentuated by prominent layers of stones and bricks
- wall sized glass windows offering plenty of air to the building’s interior
- a combination of gable and shed types of roofs
- friendly interior layout with high level of privacy
- relaxed rear patio with access to the living room through sliding glass doors
- tranquil outdoor space for entertaining family, friends and guests
- nice-looking landscaping promoting a green building
- two-car garage on a comfortable zone with remote control sectional door

Floor Plan of Enchanting One Story House Plan
A friendly and awesome floor plan; this one story house plan features a front porch that opens to the foyer. It then leads to the spacious and bright living room that connects to the dining room on the left side. It is filled with plenty of natural air and light from the patio standing in front; which is accessible through a pair of sliding glass doors.
The island kitchen beside the dining room flows freely to the dining room sitting in front. Additionally, the plan also boasts a peninsula snack bar for quick and easy breakfast and meals. A wonderful walk-in and butler’s pantry supports the kitchen. The smart layout serves a more contented space which is a great concept for green living. Beside the dining room sits the convenient entertaining space for family’s recreation purposes.

The right portion of the house is spared for the sleeping zone of four bedrooms with the master’s suite lying on the rear right corner. It is tucked away for privacy and enjoys a compartmentalized full bath, double vanity sink, garden tub, double shower and spacious walk-in-closet. On the other hand, the secondary bedrooms occupy the front right section of the house sitting side by side to each other.
Bedrooms 3 and 4 share a common bath while bedroom 2 enjoys a private unit; both of which have shower and a garden tub. They also have individual walk-in-robes. The rear façade offers a spacious patio; which is a source of great supply of natural air and light ventilating the interior of the building. Completing the plan is a two-car garage that sits comfortably on the front left corner of this enchanting home.

Overall, residential architecture successfully offered another lovable unit that most families would like to have.
this design is so perfect to me, magkano po yung ganitong house design?