Advanced architectural design is around to amaze us. Residential architecture and designers are in no doubt in continual progress in creating and delivering amazing ideas and designs. Having said so, find out how the glass medium has influenced this innovative two story house plan with excellent interior concepts.
Actually, the use of glass as one of the major design material has introduced a new dimension in generating multi-faceted homes. In fact, it offers flexibility and aesthetics as well, which are hot trend in today’s concepts. Likewise, glass greatly and strongly influences modern architectural design. As an illustration, the house in feature, uses glass as major medium to offer a different facet in houses.
The primary uses and applications of glass in the featured house is of course, the most apparent and visible ones: facades and windows. Today’s glass products for commercial and residential buildings represent extremely developed technologies. That is to say, simple windows of the past are small shadows of how they dominate today.

Description of Innovative Two Story House with Interior Concepts
At the present time, glass in residential houses establishes the fact that it is a very smart building medium. Likewise, it proves to be a better and modern substitute to other materials used before such as bricks, concrete or wood. In fact, the more glass is used in the building, the more natural light passes in to ventilate the home.
This innovative two story house with excellent interior concepts is a perfect model that utilizes glass as major building material. Consequently, this makes this residence especially the interior even more pleasing and peaceful. Moreover, with the present high-tech glass choices, the unit becomes very favorable to security, safety, or environmental sustainability.

An innovative concept, this two story house plan stands in a narrow rectangular lot with dimensions of 11.80 meters width and 23.30 maters length. Out of this area, the usable building space is 238.63 sq. meters composed of 92.31 sq. meters for the ground floor, 103.88 for the first floor and 42.44 sq. meters allotted for the carport.

Features of Innovative Two Story House with Interior Concepts
For this particular two story house model, using wall sized glass windows is a strong indicator of supporting green living. As can be seen, glass sizes in the front elevation span from ground to the first floor level. Thus, this concept welcomes plenty of natural air and light to penetrate the structure to keep the inside cool and also comfortable. Likewise, the house looks so stylish and appealing.

Outstanding features two story house with adorable interior concepts:
- Prominent concrete and glass building medium
- Elevated front terrace filled with natural air and light
- Immense glass main door and wall sized window facades which are great mediums for air and light supply to ventilate the interior of the building
- Strong concrete masonry exterior wall on the right side elevation
- Exterior wall out of stones and concrete masonry in front and left side elevations
- Impressive and excellent interior design and concepts
- Concrete and masonry flat roof
- Exterior façade in greyish white color while cream shade in the interior
- Two-car garage with remote control sectional door
- Spacious space for entertaining family, friends and guests
- Fine-looking landscape promoting green building

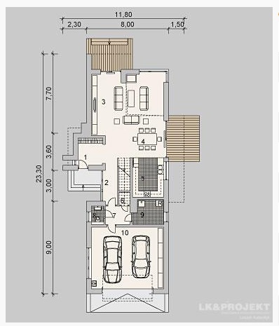
Ground Floor Plan of Enchanting Two Story House
A smart plan, the front porch opens to a pair of sliding glass door that leads to the spacious and sunlit living room. As can be seen, the space is comfortable as plenty of air penetrates through large window facades that run from ground to first floor level. A great design, the plan features an open and free flowing layout among living spaces.
The island kitchen flows freely to the dining hall that sits in front of the living room. Additionally, the plan also boasts a peninsula snack bar for quick and easy breakfast and meals. A wonderful butler’s pantry is available to support the kitchen. The design also features an informal dining space located just outside the formal dining hall which will be very purposeful for family functions.
The ground floor also features a toilet that serves the entire level and a boiler room, both of which occupy the back of the kitchen. Meanwhile, the two-car garage sits comfortably on the rear side of the plan.

Ground Floor Plan
First Floor Plan of Enchanting Two Story House
The staircase wraps around a hallway on the first floor level and presents three bedrooms. The master’s suite occupies the rear space above the carport, while the secondary bedrooms sits side by side on the left side of the hallway. The master’s bedroom is tucked away for peaceful and quiet living. It is accessorized by entertainment set, walk-in-robe and an amenity-filled compartmentalized bath with double shower and garden tub.
On the other hand, the secondary bedrooms share a common full ensuite bath and individual walk-in-closets. Laundry facilities sits beside the common bath at the right of the hallway. The first floor level enhances its functionality with an L-shaped balcony which is accessible from the master’s bedroom. Another balcony lies above the front porch which serves as recreation space for the family. The space receives plenty of natural air giving a very comfortable atmosphere.

First Floor Plan
Interior Design of Innovative Tow Story House
Interior design is remarkable because of the aesthetic value it owns in a specified space. It is not simply the looks of the building’s interior but the functionality of the design that it serves. Furthermore, interior design increases the value of a certain house.
The interior ideas of this residence substantiate the synchronization that the exterior connects to the interior appearance. Remarkably, the interior looks so lovely and elegant with a blend of white, brown and dark grey colors used from furniture down to the floor, walls and ceilings. This blend created a cool and cozy ambiance.
The Living Room

The Living and Dining Rooms

The Dining Room

The Dining Room and Kitchen

Overall, this two story house plan is one masterpiece the delivers the true comfort of living.
Be the first to comment