Over time house designs come in a lot of transformation from traditional touch to modern concepts and contemporary features. Additionally, this goes along with impressive styles and concepts. In fact, current designs follow no specific rules, thus, families can have designs that reflect their lifestyles and character. Take a look at this single-storey house design that looks imposing with the use of sharp geometric and contemporary lines.

Undeniably, this house plan is an eye-catcher in many concepts. A blend of white, grey with a yellow accent lends an exceptional and striking appeal to the house. Likewise, this design in pleasing color creates a warm and interesting exterior. Additionally, it showcases graceful exterior elements, sharp and clean lines, and flat concrete rooflines. Equally, it also shines in utilizing a combination of building materials like concrete, stone elements, and glass.

Features of Single-Storey House Design
This house in a minimalist scheme answers the growing demand for modern style homes. Its unique style with large glass doors and windows generates a fascinating haven that optimizes space, without sacrificing elegance. Glass medium doesn’t just allow the homeowners to get a good look at the panoramic view of it, but also gives the interior a cozier feel.

This welcoming modern style home plan has an excellent curb appeal, beginning right away with an elevated rectangular entry balcony designed with floor marble tiles in brown shade. The rectangular pillar with accents of grey natural sandstones does not only secures the building but also beautifies it.

A stunning medley of modern and Craftsman styles gives this impressive design a wonderful feel throughout. The exterior walls in plaster finish with grey paint and a contrasting yellow hue create a striking but subtle charm.

This cutting-edge modern design is unique with unmistakably contemporary curb appeal. You will observe the refined patterned exterior walls painted in grey tone. They are heightened by the moldings around the doors, windows, and perimeter of the house in a clean white paint.

The design also features exit sliding doors and an elevated porch with brown marble tiles. Unquestionably, one of the highlights of this house is the concrete roof assembly and a roof deck at the same time in grey color. The canopy roof around in white paint offers magnificence to the house.

The Right Side Elevation

The Left Side Elevation

The Rear Elevation



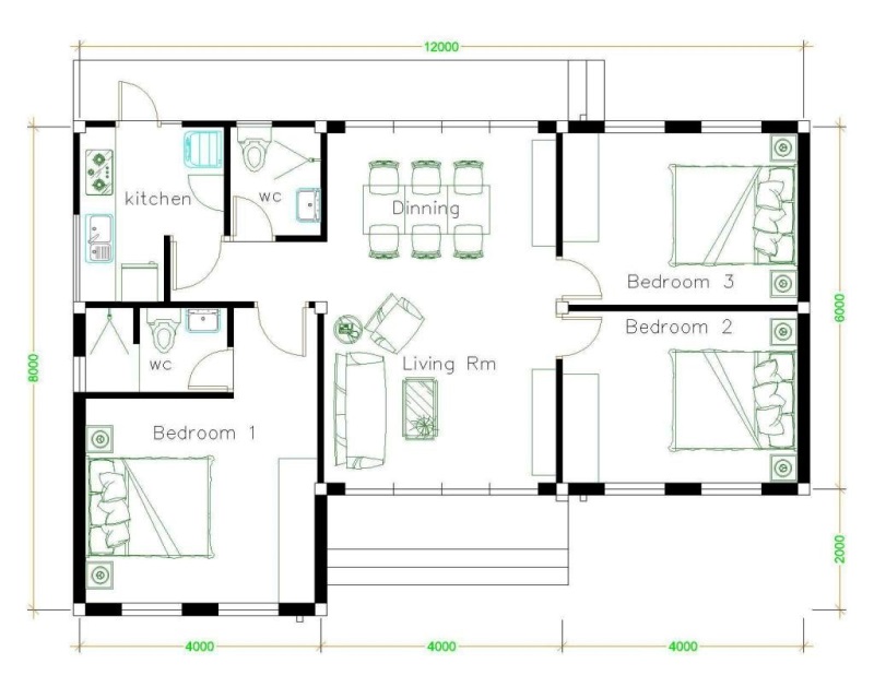
Specifications and Floor Plan of Single-Storey House Design
This single level house oozes in appeal with contemporary features. It stands in lot that measures 12.0 x 8.0 meters with a usable building space of 80.0 sq. meters. The floor area spreads to a terrace, porch, living room, dining area, kitchen, three bedrooms, and two bathrooms.
Beginning with the terrace, you will access the living room through sliding glass doors. The livable square footage has an open floor plan for the living spaces which is perfect for entertaining. The living and dining rooms which are in the middle of the plan are flanked by the master’s bedroom and kitchen on the left, and two bedrooms on the right side. One bathroom is attached to the master’s bedroom, while the other unit sits beside the kitchen. Obviously, the layout is very functional and promotes better mobility.

To sum up, the design which features an inviting tiled frontage and perimeter of the house with lush garden landscaping offers a high level of comfort for livability.
Image Credit: Sam House Plans
1 Trackback / Pingback