Are you planning to buy or build your house in urban community? If you dream your house in an urban setting, the lot size gives great impact on your design. This is because of the fact that urban spaces have already been well-developed, thus, most lots have narrow frontages. No apprehensions. A design like this modern narrow house plan will suit to standout.
Space limitations are common schemes of urban living. But there are a lot ways on how to create a smart design maintaining the home functions. On the contrary, narrow but long is a different scenario. In fact, a narrow house plan can offer similar influences as those without space constraints.
With smart building, methods, creative designs and impressive things can be achieved on a narrow lot. In this regard, Pinoy House Design features a residence in a narrow lot of 7.95 meters frontage but proudly standing in a length of 17.84 meters which yields an overall livable space of 125 m². Actually, the space is already big although narrow that it can accommodate all the house elements.

Features and House Specifications
This narrow house plan boasts its character and style with the following elements:
- porch and foyer
- family / living room
- dining room, kitchen and Butler’s pantry
- three bedrooms
- two bathrooms and laundry
- garage
- outdoor space / alfresco
- elegant interior concepts
- garden and landscaping
Description of Modern Narrow House Plan with Front Garage
The residential house in feature has a simple exterior design but registers a unique character. The front elevation bursts with a glass door in brown frame and glass windows that supplies ventilation to the interior of the structure. The exterior walls are fitted with mineral plaster finish in light brown and grey shades.
The perimeter exterior walls are also plastered and painted with similar tone as the front elevation. Meanwhile, they are also provided with sufficient glass window panels on appropriate locations bringing the interior well ventilated and comfortable.
The family / living room excels elegantly with the choice of furniture with shades of white and dark grey. Sitting beside the outer space / alfresco, the space is very pleasant and comfortable. The kitchen with a counter bar also shines in its layout sporting the same colors as the living room.

The outer space / alfresco is an extension of the living room which can serve as entertainment room for the family and guests. It is also a perfect venue for informal meals and coffee breaks. The space looks so inviting with various shades of light and grey.

As can be seen, the bedroom concept looks unique and magnetic with its smart design and layout. The choice of furniture and accessories down to the fixing and arrangements is incredibly magnificent.

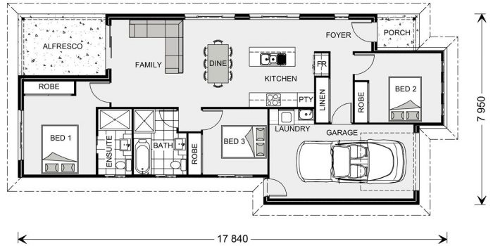
Floor Plan
This narrow house plans features a small porch that leads to the interiorof the building. The trendy entry foyer opens into a bedroom on the left side. The open-plan concept of family living space takes in a functional kitchen with island bench, adjacent dining, a spacious family lounge and easy access to the covered alfresco area.
Meanwhile, the master’s bedroom occupies the left back corner with an ensuite bathroom for privacy. The other bedroom sits to the left of the dining room and adjacent to the master’s bathroom. All bedrooms have individual walk-in-robes. A single car garage on the left corner with laundry space completes the house plan.

Indeed, this residence although narrow did not fail to serve comfort and style.
Image credit: gjgardner
Be the first to comment