Home buyers face a variety of options in either building or buying a house. In fact, each type has unique features, benefits and advantages. Moreover, the decision on the design type and style is dependent on what a homeowner wants out of the house in terms of privacy, value and maintenance. Single unit like this modern detached house is a common single-family residence that is a standalone structure on a private lot.

Single detached houses offer private outdoor living space acting as a buffer from neighboring properties since the yard space is owned by the owner. Additionally, the extra space also allows the homeowners more flexibility for recreation, whether it’s a patio, children’s play area of an informal diner. Besides, if it is a detached unit, the resale value of detached unit is obviously higher than those which are not if you intend to sell in the future.
The model house is like a duplex type or semi-detached because the left part looks like a mirror of the other side. Actually, the style is not the same as most of the houses that we see around. The design bears unique characteristics.

Significant Features of Modern Detached House in Captivating Style
- elevated terrace with a flat roof at the center of the design
- exterior wall treated with brown plaster finish that resembles wooden planks
- sufficient lighting system all around the perimeter of the house
- sliding French type glass door with dark grey aluminum frames which are identical in both the front and back of the house
- window glass panels also in dark grey frames installed on appropriate locations
- cross hip rood assembly with grey tiles
- inviting walkway, driveway and patio
- lovely garden and landscaping

Interior Concepts
The living room looks comfortable with large glass door that penetrates inside the house. The space looks pleasant with brown floor tiles and grey furniture. Meanwhile, the dining room that sits beside the living room looks pleasant as well with cream colored dining set.

The bedroom burst with gorgeousness with light brown bed and built-in cabinets.

On the other hand, the kitchen although small in size did not fail to offer the style and function in dominating brown shade and cream interior walls.

The bathroom also shines with a mix of brown and grey shades and quality fixtures.

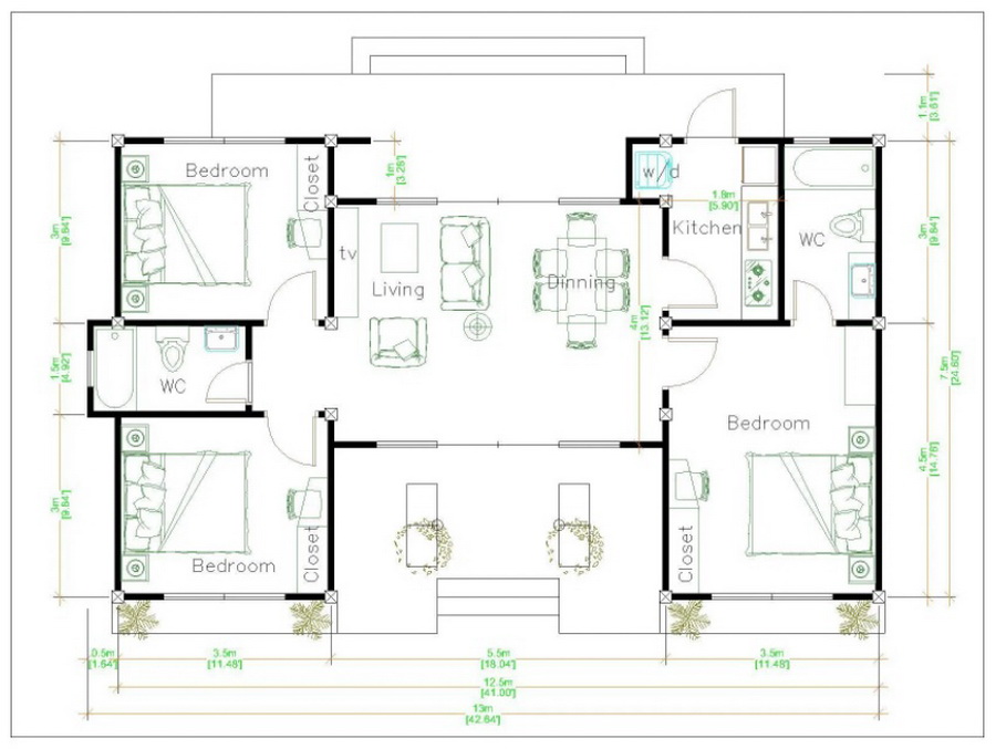
Specifications and Floor Plan
The house in feature offers the following components:
- terrace
- living room
- dining room and kitchen
- three bedrooms
- two bathrooms
- open garage

The house design features a terrace at the center leading to the living and dining rooms through sliding glass doors both in front and back of the plan. The living spaces are in a free flowing concept that promotes better mobility and accessibility. Meanwhile, the three bedrooms occupy the three corners of house. There is also a big space at the back of the plan which can serve as washing area or space for family related gatherings.
A beautiful and captivating house, the benefits it offers will be liked by most homeowners.
Image Credit: Prohomedcorz
Be the first to comment