Modern houses are characterized by efficient utilization of spaces, open floor plans, large windows, and less formality. The good thing about them is that they do not conform to any standard design. In fact, the homeowner has the privilege to plan on what to include in the design. Moreover, they can customize and incorporate their personal needs and lifestyle until they have arrived at satisfaction. Feast your eyes on the brilliant features of this modern architectural house design with a stunning symmetrical layout.
You will love this beautiful design that explodes admirably with amazing exterior concepts that create a modern touch and feel. It is wrapped up with trendy features that stand exceptional in a versatile blend of white, and grey tones. The combination of these color tones generates a cool vibe and a bright and airy space.

Features of Modern Architectural House Design
This contemporary house is full of sleek and brilliant architectural concepts, The clean rooflines catch your eye and draw it towards the main entrance. The front elevation looks graceful and stylish with an elevated terrace with grey marble tiles, French-type door assembly, and a polycarbonate flat roof. Likewise, a pair of planter’s boxes add an extra punch to the house’s appeal.

The perfect home for any location, this modern design is both stylish, and functional. The spacious frontage with polished tiles floods the interior with tons of natural air and makes the inner space feel cozier. Equally, glass doors and windows in grey tint make the inner spaces even more comfortable as volumes of light and air penetrate through them. With lots of light, the interior looks brighter.

Incredibly impressive is the symmetrical and well-designed cross gable roof with grey-colored roofing sheets, white ceilings. and grey gable. Meanwhile, it will take a single viewing to note the exterior walls with touches of plaster finish in grey tone. Additionally, the outlines in a classy white shade visible in the entire exterior façade look elegant.

Interior Design of Modern Architectural House Design
This gorgeous home has a friendly exterior and is complemented by an elegant interior. The interior is neat and well-organized too, with all the furniture and decors in it. You will also love the overall concept of the entire space, arrangement of furniture, decors, and accessories in white, grey, and brown tones from floor to walls and ceilings. Let us take a look at the interior concepts of this design.
Living Room

Dining Room

Kitchen

Bedroom

Bathroom

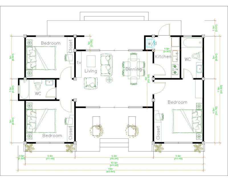
Specifications of Modern Architectural House Design
You discover a house of comfort standing in a lot that measures 13.0 x 7.5 meters. The smart layout with a usable building space of 98.0 sq. meters hosts the following:
- terrace
- living room
- dining area
- kitchen
- three bedrooms
- two bathrooms
This straightforward plan features a symmetrical layout with respect to the center. You will enjoy a full stop at the gorgeous terrace, enjoy the space and then move to the inner space through glass doors. Once inside, you will notice the great living spaces in the middle of the plan and is accessible from the front and back glass doors.
Meanwhile, the private zone of three bedrooms borders the living spaces on three dedicated corners. The master suite with a private ensuite and walk-in robe is positioned in the front right corner. On the other hand, the secondary bedrooms sit comfortably on the opposite corners on the left section of the plan.

Overall, if you are scouting for a unit with combined aesthetics and comfort, then you find the perfect home with a spacious and comfy outdoor space.
Image Credit: Pro Home Decors
Be the first to comment