Most people prefer to live in modern homes because their designs are more stylish. Actually, the good thing about a modern home is that it does not conform to any standard design. The homeowner can decide on what features to integrate into the design. Besides, customization gives a better feeling of satisfaction because the ideas come from the owner. You will love the magnificent concepts of a contemporary prairie-style house with symmetrical layout.
This design gives priority to space, where the floor layout shows that it is used efficiently. In any way, it needs to complement the overall design of the house, including its size. You will love this beautiful design that bursts with amazing exterior concepts creating a modern touch and feel. Applying a fusion of white, blue, and brown hues in the elevation, generates a trendy exterior with bright and airy space.

Features of Contemporary Prairie-Style House
This contemporary house is full of brilliant architectural concepts. Let us identify the lustrous features that allow this house to draw the attention of most families.
- elegant exterior façade with clean contemporary lines, embellished with sconce lights illuminating the building at night
- an elevated terrace with grey marble tiles, French-type door assembly, and polycarbonate flat roof
- frosted glass windows and French-type ceiling glass
- symmetrical design on both wings with respect to the center that carries identical concept, materials, and assembly
- spotless exterior walls treated with mineral plaster finish in a fusion of white and blue tones
- graceful and elegant shed roof assemblies sloping on three sides with grey-colored metal sheets, and white ceilings
- inviting tiled frontage, beautiful garden, and overflowing lush landscaping
- well-crafted interior layout, and marvelous interior design and concepts

Undoubtedly, this house which is perfect for any location is both stylish, and functional. The spacious frontage floods the interior with tons of natural air making the inner space pleasant. Similarly, the glass elements make the inner spaces more comfortable with volumes of light and air penetrating through them.

Incredibly impressive is the symmetrical and well-designed shed roofs with grey-colored roofing sheets, and white ceilings. Meanwhile, it will take a single viewing to observe the exterior walls with touches of plaster finish in white and blue tones. The outlines in a classy white shade visible in the entire exterior façade is equally elegant.

Interior Design of Contemporary Prairie-Style House
The true charm of a modern home is in its details such as the furniture, art, and personal touches. All these aspects help reflect your unique personality in the end.
Undeniably, the inner spaces are as impressive as the exterior considering the colors, tidiness, and workmanship. In fact, it explodes in elegance in the white and brown shades which are visible from the floor, walls to ceilings, including the furniture, fixtures, accessories, and decorations. This concept extends to every space inside. See how the interior delivers its concepts remarkably.
Living Room

Living and Dining Rooms

Kitchen


Bedrooms


Bathroom

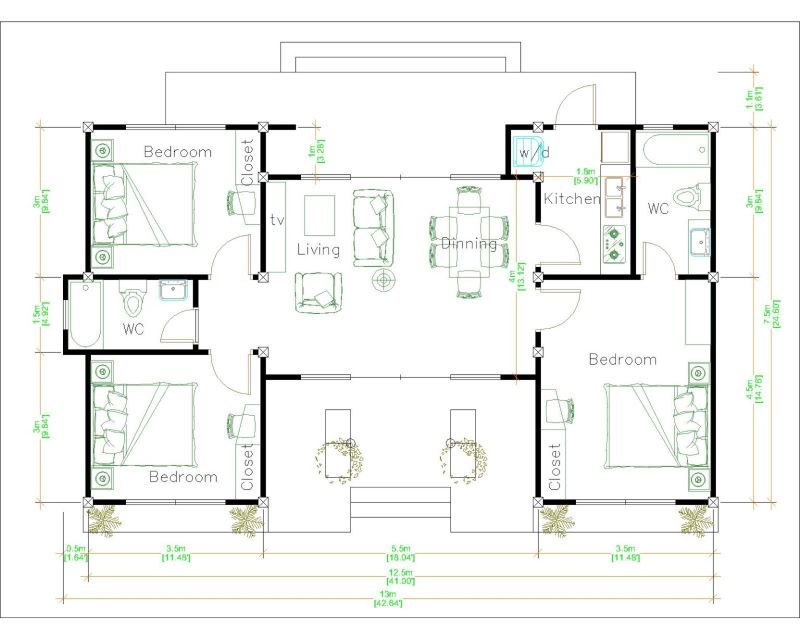
Specifications of Modern Architectural House Design
You are lucky to see a house of comfort standing in a lot that measures 13.0 x 7.5 meters. The smart layout with a usable building space of 98.0 sq. meters hosts a terrace, living room, dining area, kitchen, three bedrooms, and two bathrooms.
An impressive floor plan features a symmetrical layout with respect to the center. You will enjoy a full stop at the beautiful terrace, and enjoy the space for a while. and then proceed to the inner space through glass doors. Once inside, you will notice the great living spaces in the middle of the plan which are accessible from the front and back glass doors.
Meanwhile, the three bedrooms border the living spaces on three dedicated corners. The master suite with a private ensuite and walk-in robe occupies the front right corner. On the other hand, the secondary bedrooms sit comfortably on opposite corners on the left section of the plan.

Overall, if you are scouting for a unit with combined aesthetics and comfort, then you find the perfect home with a spacious and cozy outdoor living space.
Image Credit: Pro Home Decors
Be the first to comment