Have you decided on what house to buy or build? What are the major concerns that you consider? In reality, whether you buy or build a house is not as simple as what you think. In fact, either you want to invest for a single story house, two storey residence, split level or any other type, requires careful decision. This contemporary house with stunning exterior is one to recommend because of its remarkable features,
Truly, a house is a precious possession and lifetime investment thus, you have to be smart in making your decision. The first thing that you have to consider is your financial status because everything will depend on your budget. Other factors to be taken into account are type of house, location, family size, lifestyle and the need for privacy.

For households who prefer a single storey house plan, this unit with lots of benefits and advantage like having a wider appeal and energy-efficient. Certainly, the overall cost of construction will be lower and the maintenance of the unit will be easier and of lower cost. Additionally, investment wise, it will have higher resale value.
Description of Contemporary House with Stunning Exterior
The house in feature stands in a land area of dimension 9.00 x 16.0 meters with a usable living space of 118.00 sq. meters. This residence is built is a cozy environment thus, living is very comfortable and healthy.

The front exterior shines with style and character. The design features the house in an elevated scheme allowing the house to stand taller delivering an enhanced appeal. The terrace looks very prominent with square columns with stacked stones in grey shade. A wooden bench is serving more function for family get together. You can imagine how comfortable the place is because it’s widely open for fresh air and light. The level of comfort inside the house is further enhanced by large and wider size of sliding glass door in white aluminum frames.
The exterior wall elevations burst with mineral plaster finish which shines in various shades of grey. The darker greyish outline on the bottom perimeter around the house conveys an additional appeal. The elevations have sufficient glass window panels on appropriate locations to help ventilate the interior of the building. Meanwhile, the roof looks very prominent with a single assembly of hip roof in grey tone.

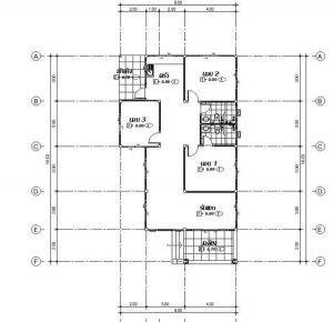
Floor Plan and House Specifications
The house in feature at this article stands out with finesse and style that includes the following essentials:
- elevated, open terrace
- living room
- dining room and kitchen
- three bedrooms
- two bathrooms
- hip type roofing assembly
- garden and landscape

Enjoy the freshness and comfort of this contemporary house with stunning exterior. The conducive atmosphere will bring you into a different level of comfort.
Image Credit: Ban Chang Chiang Rai
Be the first to comment