Until now, funds allocated for housing necessities gets the highest share of most family’s budgets. We all need home for shelter, privacy and security because this is equally vital as the other basic needs. The model house plan in feature is a sophisticated single floor three bedroom contemporary house which will cater most home buyers.
With a very classy exterior façade, this home has three steps elevation from the finished grade line. The plan sits on a 12.40 meters frontage and 9.68 meters on the sides. While complying with the housing legal requirements of 1.5 meters setback, the house requires to stand in 210 square meters.
Another beautiful design, this sophisticated single floor three bedroom contemporary house presents a friendly layout. The notable elements include the porch/garage, sitout, living and dining room, three bedrooms, kitchen, working/service area and two units of toilet and bath. A family of 4-6 members will feel comfortable in enjoying the privileges of this beautiful home.

Description of a Sophisticated Single Floor Three Bedroom Contemporary House
The structure of this sophisticated single floor three bedroom contemporary house design is all concrete and masonry from floor to roof. Square columns and a separate flat concrete roof secure the porch/garage. Low masonry with concrete wall surrounds the sitout to serve as the sitting area itself.
The overall façade of the building is showered by white and grey shades with a little streak of brown in the aluminum frames for windows. Surprisingly, the building in regular vertical and horizontal lines generate an amazing architecture. That is to say, the accents of lines and stripes work effectively in this beautiful house design.
One of the remarkable feature of this house is the multipurpose roof deck showing great emphasis. The parapet wall and the roof that secures the staircase looks so dominant and appealing. As a functional design, the roof deck extends the service as a space for recreation, fitness or a venue for family social activities.
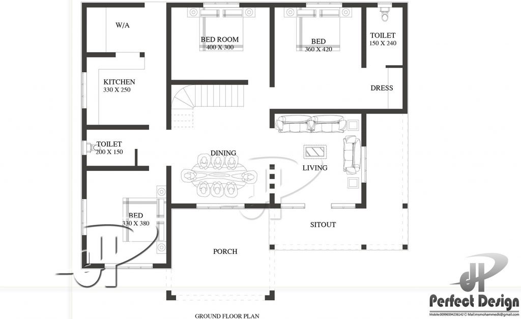
Floor Plan of a Sophisticated Single Floor Three Bedroom Contemporary House

With attention to the plan, the porch provides the perfect welcome to the living room with a comfy L-shaped couch facing the main door. A divider separates the living from the dining room sitting to the left of the living area. In fact, it is a smart idea to place the dining hall at the very center of the plan. For this reason, it promotes high accessibility to and from all rooms of the house.
Three bedrooms compose this residence with the master’s bedroom in the right corner. Its location in the comfort zone defines a certain level of privacy and silence. On the other hand, the other bedroom stays beside the master’s while the third unit is at ease in the front left corner. While the master’s bedroom enjoys a private ensuite toilet, the other two share a common unit. However, they have their individual walk-in-closets.
While it is great to position the kitchen at the left corner to get rid of fumes inside, a working/service area is provided to accommodate other kitchen activities. Similarly, this serves as a space for other household chores as well. The porch laid out on the center of the front façade functions as a one-car garage as well.
To sum up, this residential house is a package that promotes coolness, coziness and style.
Be the first to comment