Contemporary homes become popular because they have broken the mold when it comes to changing architectural styles. These designs highlight numerous features that many homebuyers want for their investment. Similarly. the range of attributes includes free-flowing concepts, natural lighting, and energy efficiency. This sophisticated contemporary home design suits a variety of statuses, lifestyles, family sizes, and all ages. Let us check its outstanding characteristics.
Starting with a spacious green setting in a cozy location, the combination of white, blue, and dark brown hues and a little accent orange delivers a cool vibe. Likewise, the cool tones generate a soft contrast with the green surroundings and lovely landscaping.

Features of Sophisticated Contemporary Home
There’s something unbelievably impressive about this modern house design. In fact, it’s a feeling you get from the minute you step through the gorgeous elevated terrace. Meanwhile, you will love the following remarkable features that make this house stand out on its own.
- elevated terrace designed with marble tiles, steel guardrails, pillars in white and blue tones, and a flat roof
- raised balcony with a concrete canopy roof and is accessible from the master suite through glass doors
- wooden battens in the orange shade along the gable that adds beauty to the façade
- large-sized glass doors and slim rectangular window panels with dark brown frames
- exposed exterior walls in a tidy and refined light blue paint
- combination of flat and shed roofs with blue tiles, white ceilings, and blue gable
- engaging open garage
- well-designed and comfortable interior layout
- spacious outdoor living space with lovely landscaping

The modern design is perfect in any housing location. With green surroundings, it floods the interior with tons of natural air for comfort, Likewise, the large glass doors and window panels allow cross ventilation to keep the interior at a pleasant level. Besides, by using glass in the home’s facade, the home looks brighter and feels cozier.

Unquestionably, one of the most amazing elements of this house is the elegant graceful roof assembly in a combination of flat and shed roofs. The entire assembly along with its refined workmanship is visually appealing and increases the value of the house.
Furthermore, you can observe the elegance of this design from tidy external walls with a mineral plaster finish in a light blue color. Additionally, the molding on the top and bottom in an orange tone around the perimeter delivers an extra punch to the house’s appeal.

Specifications of Sophisticated Contemporary Home
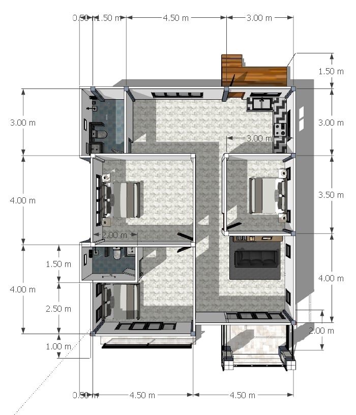
Elegant and regal, this elegant design offers a modern style family plan. It stands in a lot that measures 9.5 x 12.0 meters and yields a usable space of 114.0 sq. meters. The building space provides a terrace, balcony, living room, dining room, kitchen, three bedrooms, and two bathrooms.
The elevated terrace will guide your way to the living room through sliding glass doors. The sharp edges of this modern design set a stylish architectural detail along the exterior, that extends to the inner spaces. The great living room which looks great for family entertainment is filled with lots of light and air penetrating from the glass panels. The dining room and kitchen occupy the back section of the layout
Meanwhile, the movement inside produces an easy enjoyable lifestyle with the three bedrooms that border the living room on three corners. The light-filled master suite, positioned at the left corner, features a private ensuite and generous walk-in robe. On the other hand, the secondary bedrooms sit in front of the living room and master suite which are both cozy as well. The open carport sits comfortably on the right side of the house.

Overall. this design with brimming landscaping provides a comfortable outdoor living space, which is healthy to the family.
Image Credit: TP5 Home
Be the first to comment