Bungalow houses remain stylish because of their features and benefits. There are lots of designs from street to street that we can see everywhere. In particular, we are featuring a modern 2 bedroom house plan with an impressive spacious area around the house. This model house radiates charm and sophistication that will certainly be loved by most families.

Obviously, this modern house has a pleasing and graceful exterior. A combination of white, cream and grey and an accent of orange-brown in the elevation lends a unique and captivating appeal to the house. Likewise, the warm orange-brown creates a fascinating exterior in refined workmanship.

This modern bungalow house features an open terrace designed with brown marble tiles and steel guardrails that although simple looks functional. The exterior boasts a graceful hipped roofline and exterior walls in mineral plaster finish with white paint.

This design is embellished with large-sized grey tinted glass windows in all elevations allowing cross ventilation to keep the interior at a pleasant level. This concept allows natural light and air to enter inside the house for comfort. Similarly, glass doors and windows don’t only give the owner the privilege of getting a great panoramic view of the outdoor space, but they offer the inside a cozier feel.

Perhaps, one of the most significant features of this house is the well-designed and refined cross hip roof assembly with grey tiles, and white fascia board and ceilings both in white tone. Obviously, the concept looks graceful and elegant.

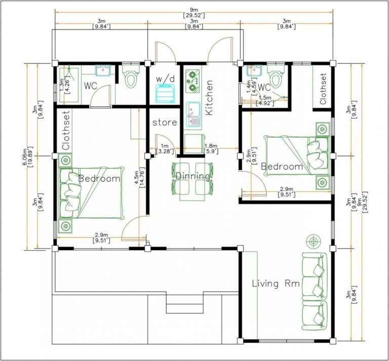
Specifications and Floor Plan of Modern 2 Bedroom House Plan
This design stands in a square lot that measures 9.0 x 9.0 meters and usable space of 72.0 sq. meters. The space spreads to a terrace, living room, dining area, kitchen, two bedrooms, two bathrooms, and a storage room. The bedrooms have simple designs, but with complete amenities.
The design features an elevated terrace directing to the living room through glass doors. The living spaces in an L-shaped arrangement enjoy a free-flowing concept that promotes better mobility and accessibility among rooms. The living room is on the front corner, while the dining area and kitchen sit in the middle of the plan. On the other hand, the two bedrooms flanked the dining area with the master’s bedroom with a private ensuite on the left side. The other bathroom is adjacent to the kitchen.

This single storey house looks stunning with the space around designed with grey marble tiles. The space can serve as an extension of the living room for relaxation and family-related activities. With a lovely garden and landscaping, a comfortable lifestyle is achievable.
Overall, the design and concepts of this house are aesthetically pleasing and comfortable.
Image Credit: Sam House Plans
Be the first to comment