One-story house plans are already popular a few decades ago and recently have seen their resurgence in status. We can see them lined up everywhere in a variety of sizes and styles from simple to amazing designs. In fact, they are beautiful properties and precious investments. Besides, there are lots of reasons why a single level house can be the home you had to settle with. Discover why this gorgeous 4-bed contemporary house plan will make a smart choice.

Features of Gorgeous 4-Bed Contemporary House Plan
Beyond the splendid modern look and feel of the exterior, this beautiful house also comes in a spacious plan, making it a great fixture for many suburban areas. Additionally, the exceptional exterior, the smart floor plan, and the carefully considered features will definitely make most families happy. It features four generous bedrooms arranged functionally in a 225.0 sq. meter floor layout.
The design headlines a verandah that spans over the entire frontage of 12.0 meters in width. The space which is a perfect entryway to access the inner spaces bursts with grey and brown marble tiles, guardrails, a bench with a backrest and secured by columns, and a flat roof with battens.

The exterior façade looks strong but peaceful with glass blocks on the right wing, some accents on battens in an orange tone, and most significantly, grey tinted glass doors and windows. This modern design has gone to great lengths and creates a comfortable atmosphere with the glass panels that shower the interior with tons of light and air. Equally, the airy surroundings contribute a lot to keeping the inner spaces cozier.
This graceful shed roof assembly gives you a fully-featured home without the hassle and maintenance concerns in the future. The styling not only offers exterior good looks but serves the required functions. Additionally, the sleek rooflines, grey roofing materials, grey gable, and white ceilings make the assembly remarkable. Meanwhile, the exterior walls look spotless in a tidy classy white plaster finish, where the beauty is heightened by the moldings in the orange shade around the perimeter of the house.

Specifications of Gorgeous 4-Bed Contemporary House Plan
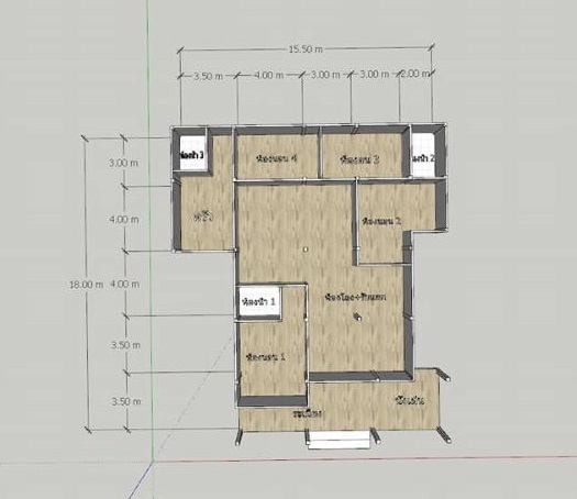
This contemporary house has a spacious internal layout of 225.0 sq, meters taken from a lot that measures 15.5 x 18.0 meters. The design hosts the following house specifications:
- verandah
- living room
- dining room
- kitchen
- four bedrooms
- three bathrooms
The sliding glass front doors invite you into a roomy inner space. Coming inside the house from the verandah, you’ll find yourself at the heart of the living area. The living and dining rooms room are completely open to each other, which makes for an infinitely configurable furniture layout. Just past the dining room is the kitchen on the left side.
The living spaces that occupy the middle of the plan are bordered by four bedrooms. The primary bedroom privately sits all the way to the left corner with a private ensuite and large closet. On the other hand, the secondary bedrooms settle in the back section just in front and adjacent to the dining room.

To top it all off, this home design suits a large family that seeks privacy and comfort.
Image Credit: Dream House
Be the first to comment