The Choice for a Simple House
At times, people wants to feel the freshness of clean air. They are looking for a place where they can spend some space for freedom and privacy. Or a place to dwell in to escape from the noisy sounds of the city and the monotony of stress. This elegant small residential country house is a perfect suggestion. This house will fit those families who owns properties where they can build a ranch or cottage like this. Definitely, this will be very purposeful.


Aside from the aforementioned recommendation, this small home will be fit in any housing location. In the light of today’s economic situation, most families cannot afford expensive or bigger houses. As we all know, the cost to build or own one is not as easy as what we think it is. It is even more difficult if your family doesn’t have the resources to own one. But then, there are always a handful of solutions to problems. As basic necessity, you can start with a small house at least to shelter your family. And that is the most important thing. This elegant small residential country house in feature can be your initial choice. Considering its size this house is small and therefore requires less material and makes it affordable to build.


Elegant Small Residential Country House: Description and Specifications
This house has the following specifications:
Floor area 70 m²
Elements: Small porch, living room, dining room, kitchen, 2 bedrooms, toilet and bath, service area

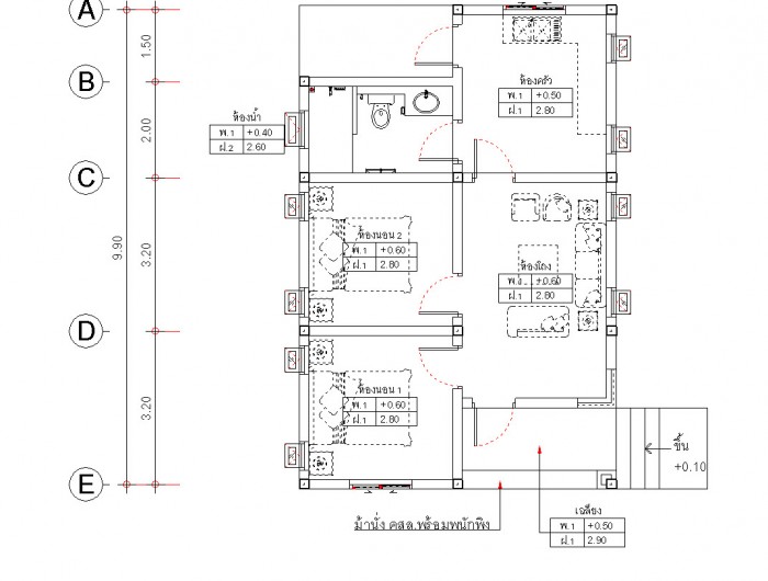
FLOOR PLAN
This country house has a small porch which is directly opening to the living room and adjacent to the dining room. On the right side of the plan are the two bedrooms of average size. To observe some factor of privacy, a wall separates the kitchen from the dining room. A toilet and bath is adjacent to one of the bedrooms. On the far left corner of the plan is the service area.
As can be seen, this house is built in the simplest way but its simplicity looks so cool and elegant. There are no sharp angles or complicated lines but the overall appearance is enough to describe calmness. The combination of two shed roofs constructed in opposite direction flawlessly fit the structure. Likewise,the flat roof used in the porch gives additional appeal and attraction.



To sum up, this country home will absolutely win the hearts of homeowners and buyers,
Be the first to comment