A house is where the heart feels so secure and safe. In fact, it is the beginning and end of your daily journey. Since it is where your heart lives, then it is very significant to have your own unit. Above all, your home is your freedom and privacy. And this is what this regal single story home in sloping lot will offer you.
While financial aspect is the foremost concern in building a home, it’s better to choose a small and affordable unit. Location is equally important in making decisions in acquiring a house. Of course, you can find a good place as they area available everywhere.
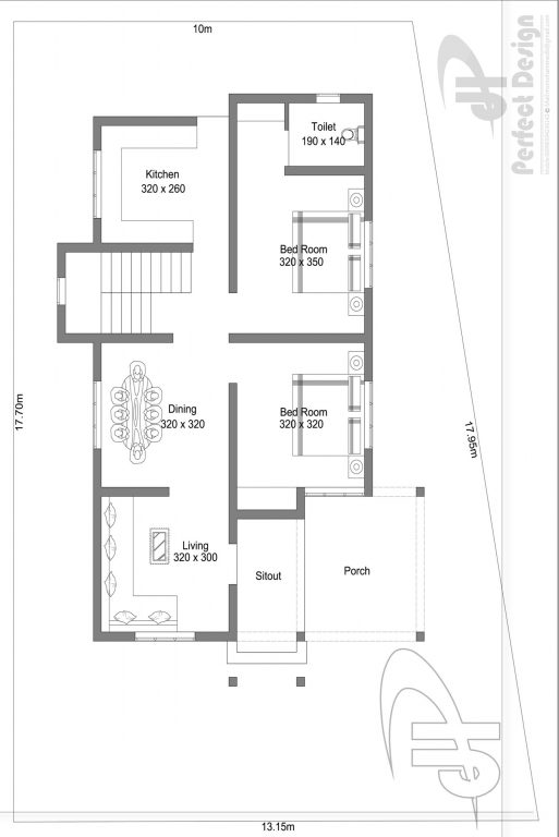
This regal single story home in sloping lot has a floor area of 80.0 sq. meters to stand in a trapezoidal property lot that measures 10.00 / 13.15 x 17.00 meters. Considering the width of 10 meters, the setbacks are 1.50 and 2.10 meters at the left and right respectively. Using the same setback of 1.5 meters at the back, the remaining 5.10 meters will be a useful space in front.

As a result of this layout, there is still an approximately 57.0 sq. meters available in front usable as driveway. Meanwhile, the features of this regal single story home in sloping lot include: covered porch/garage, sitout, living and dining rooms, two bedrooms, kitchen, two T&B, staircase and roof deck.
Key Features of Regal Single Story Home in Sloping Lot
The key features of this one-story house plan are:
- Elevated covered porch/garage and sitout supported with columns of dark emser tiles and secured by concrete roof
- Comfortable living room with L-shaped couch
- Dining room filled with air from the glass windows
- Modern U-shaped kitchen
- Two bedroom including the master’s bedroom with private T&B and walk-in-robe
- Roof deck usable for recreation, relaxation or venue for family affairs and social functions
- Outdoor space for entertaining family and guests
- Beautiful landscaping and access to nature
- Combination of flesh wall, brown aluminum window frames and emser tiles and streak of striped grey shades giving a nice blend
Floor Plan of Regal Single Story Home in Sloping Lot

Small and simple houses are easy to plan and design internally. The porch/garage and sitout sit beside each other with the living room directly to the left of the sitout. The living room with an area of 9.60 sq. meters sit at the left corner, while the dining room in front of the living room measures 10.24 sq. meters.
The two bedrooms are laid out side by side which occupy the right portion of the plan. The master’s bedroom rests on the far right corner while the other stays beside the MBR and on the right of the dining room. Both bedrooms are furnished with individual walk-in-robes. The MBR has an attached T&B while the common T&B stays below the staircase in front of the dining room. The kitchen with a dimension of 3.20 x 2.60 meters owns the left corner at back of the house.
Indeed, space will not be a restriction in having a regal single story home in sloping lot like this design. It’s a matter of smart designing and interior concepts choice and application.
How much
How much do i uave to pay for the design?