A wonderful light-filled family home with marvelous features. This modern-style family home is a cleverly designed residence with plenty of space for every member of the family throughout changing life stages. Certainly, you will love this stunning home which is the epitome of how modern architectural designs have gone to greater lengths. Additionally, this design amplifies lifestyles and creates a flawlessly functional home, full of everyday treats.

Features of Modern-Style Family Home
What is amazing about this design is the concept of flexibility and functionality. In fact, it offers endless options and an abundance of outdoor living spaces that respond to the family’s need for comfort and convenience. You will adore this stylish home that screams in a fusion of white, grey, and brown hues that generate an elegant masterpiece.
This house design showcases strength and style. The exterior façade utilizes a combination of various design elements like marble, aluminum, and glass which creates a stunning curb appeal. It headlines a gorgeous L-shaped verandah with brown marble tiles secured by columns and an extended hip roof.

One of the excellent elements of this house is the sliding glass doors and awning type of windows in bronze tint and frames installed in appropriate locations. These glass panes shower tons of natural light and air that keep the inner spaces pleasant. Besides, they offer the house a balance of privacy and natural light. The internal rooms have excellent views of the outdoor living areas while still protected from outside view
Everyone will agree to say that the cross hip roof assembly with grey tiles and white ceilings is perfectly assembled. Likewise, the exposed exterior walls are impressive with the spotless surfaces that gleam in a classy white tone. As a result, the conglomeration of exterior concepts along with tidy workmanship exudes sophistication.

Specifications of Modern-Style Family Home
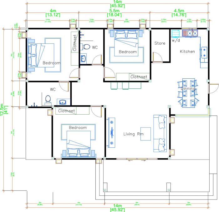
This contemporary home will impress families and homebuyers. It features a smart interior layout that stands in a lot with a usable building space of 175.0 sq. meters from a lot that measures 14.0 x 12.5 meters. The total cooled and heated living space hosts a verandah, living room, dining area, kitchen, three bedrooms, two bathrooms, and storage room.
The gorgeous terrace offers full access to the spacious living room that can host any gathering in comfort. The living spaces occupy the front and right sides, while the bedrooms gather on the front left and back sides. The interior is fabulous in an open concept with a large great room overlooking the gourmet kitchen and dining area. The impressive kitchen sits privately at the back which serves as the central hub for great meals. Its services extends to the outdoor living that exits from the dining room.
The master suite resides at the back left corner, delighting the family with a huge walk-in robe and ensuite. On the other hand, the secondary bedrooms settle on the left, and in front of the living room. Meanwhile, a separate graceful building on the right lot is where the carport is.

The outdoor living space with brimming landscaping around the house is beyond description. Overall, this home built in a private lot, and a conducive green setting and location is best for its comfort. The family can experience and enjoy outdoor dining shared in a quiet and serene environment.
Image Credit: Pro Home Decors
Be the first to comment