Living in a house with beautiful aesthetics inside and outside with a comfortable atmosphere is always a nice feeling. In fact, comfortable living is healthy. This exclusive modern house design will definitely win the hearts of many homebuyers because of its characteristics and benefits.
This design utilizes the space efficiently. In fact, the spaces are well-placed that showcases better mobility and accessibility. It boasts an imposing exterior façade in a fusion of white and grey hues in the entire elevation. Visibly, the cool and pleasant colors generate a welcoming ambiance. Similarly, the house stands in a lot with inviting outdoor living space where its beauty easily comes to view.

The refined nature of this contemporary design is full of sleek and attractive details. An entry terrace with grey natural marble tiles and clean and sharp roofline is eye-catching and draws it towards the front entrance. Equally, the wall cladding with rough-cut natural stones offers an additional appeal to the design.
The design is provided with sufficient glass doors and windows which allow tons of natural light and air to flood the interior for comfort. Similarly, these glasses make the interior brighter and feel cozier. Besides, glass windows allow the residents to get a clear view of the lovely outdoor space with brimming landscaping.

Meanwhile, the open space, smart design, and clean proportions join together in the rear elevation generating a stunning design. The polished elevated balcony, transparent glass doors and windows, and refined workmanship on the exterior walls exude elegance.

Probably, one of the most dazzling features of this graceful design is the shed roof assembly with grey roof sheets and a white fascia board. The roof looks perfect for this design, yet a hip roof will equally deliver an astounding appeal.

Interior Design of Exclusive Modern House Design
The interior design and concepts of this splendid residence truly explode with grace and elegance. The interior utilizes a versatile blend of white, grey, and brown shades that are both striking and aesthetically appealing. The contrast of the choice of furniture in grey and brown and white surroundings creates a dynamic character.
Additionally, providing the spaces with lots of ceiling lights makes the space brighter, while the glass windows allow it to feel cozier.
The Living Room

The Living and Dining Rooms


The Dining Room and Kitchen

The Bedrooms


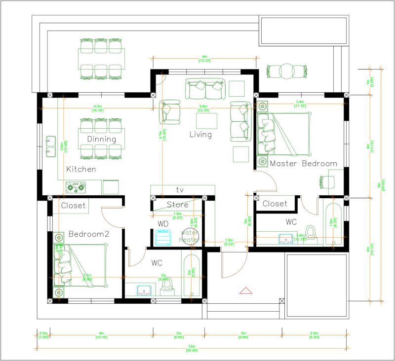
Specifications and Floor Plan of Exclusive Modern House Design
This exclusive modern house is built in a lot that measures 12.0 x 9.0 meters and generates a usable space of 108.0 sq. meters. The floor area hosts a terrace, balcony, living room, dining area, kitchen, two bedrooms, storage room, and two bathrooms in a smart layout. This design features great spaces with plenty of natural daylight flooding the common areas of the home.
The great living room is accessible from the front and rear doors with ease. The dining room and kitchen are close on the immediate left of the living room at the back. The flow of the space generates an easy enjoyable lifestyle with a light-filled master suite, positioned at the right front of the plan, that features a private ensuite and generous walk-in robe. Meanwhile, the secondary bedroom is equally pleasant that sits in the front left corner.

To sum up, aside from beautiful aesthetics, the spacious outdoor living space showers the entire residence with tons of comfort. Additionally, the inviting surrounding space is perfect for family relaxation and other social functions.
I love this design.
Image Credit: Pro Home Decors
Be the first to comment